Direkt zum Seiteninhalt

Apartment 1 - Pension Pieschen Dresden

Pension Pieschen
preiswert und zentrumsnah
Übernachten in Dresden
Torgauer Straße 36 in 01127 Dresden
Fon: 0351 4798233
Mobil: 0160 90887281

Menü überspringen
Menü überspringen

Apartment 1

Unsere Zimmer
Menü überspringen
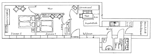
Das Apartment ist ein separates Ferienhaus - Flachbau auf dem Grundstück der Pension und kann wahlweise mit 1 oder auch mit 2 Schlafzimmern gebucht werden. Die Schlafzimmer sind jeweils getrennt von einander abschließbar. Durch verschiedene Aufbettungsmöglichkeiten kann dieses
Domizil maximal bis zu 8 Personen beherbergen. (Optimale Auslastung 6 Personen) Hierbei sei gesagt, dass diese Unterkunft für Familien mit Kindern oder befreundete Paare besonders gut geeignet ist. Das Apartment verfügt über ein Badezimmer mit Duschbad sowie einen Doppelwaschplatz. Das WC befindet sich neben an in einen separaten Raum.
Die Küche ist modern eingerichtet und bietet alle Haushaltgeräte, E-Herd mit Ceranfeld und vieles mehr.
Zur Ausstattung der Küche gehören ebenfalls Geschirrspüler, Kühlschränke, Mikrowelle, Kaffeemaschine, Toaster, Wasserkocher, Eierkocher und Früchtekaltentsafter.
Bettwäsche, Handtücher, Seife, Zahnbecher und Regenschirme finden Sie ebenfalls bei uns vor.

Wir wünschen einen angenehmen Aufenthalt:
Grundriss Apartment 1, Feriernhaus, (gesamt 65 m²), Flachbau- EG
Belegungskalender mit 1 Schlafzimmer
Belegungskalender mit 2 Schlafzimmern
Zurück zum Seiteninhalt